Il est étudié pour favoriser l’accès à la propriété à moindre coût !
Votre maison durable et évolutive avec un petit budget.
Ce type de construction comporte beaucoup d’avantages :
- Économique : à partir de 120 000 €.
- Evolutif : prévue pour un agrandissement éventuel (en rez-de-chaussée ou pour rajouter un étage, équipement supplémentaire).
- Ecologique :
- 1. Possibilité de réalisation du projet en BBC (Bâtiment Basse Consommation).
- 2. Toiture terrasse végétalisée avec éclairage zénithal (transformable pour accès au 1er étage en 2ème étape).
- Style très moderne et design (différent des maisons traditionnelles).
- Possibilité d’options supplémentaires décoratives :
- 1. Fontaine incorporée dans une roche pour se sentir dans la nature, représente le côté «ZEN » d’un jardin.
- 2. Barbecue en pierre (voir annexe).
- 3. Pierres naturelles pour décoration.
- Fonctionnelle et pratique dans un environnement naturel.
- Construction de maison en brique : isolation phonique et thermique performante.
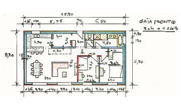
1ère étape GAÏA-PROJECT avec (2 chambre 1 salon-cuisine + terrasse) évolutif avec un petit prêt bancaire accessible par les banque :
2éme étape GAÏA-PROJECT avec 1 étage, 3 chambres supplémentaires + terrasse après quelque année :









